Ir al contenido

LP Redistribución Estratégica

¿Quieres descubrir la mejor versión de tu casa? Empieza por una Redistribución Estratégica.

Juntos definiremos la distribución de tu vivienda para elevarla a su mejor versión con un servicio personalizado en el que ponemos a tu disposición más de 16 años de experiencia.

Un servicio profesional de arquitectura

con el que conseguirás

    • Mejorar la funcionalidad.
    • Ganar amplitud.
    • Aumentar el confort.
    • Conseguir la estética perfecta.

Trabajaremos contigo para potenciar la funcionalidad de tu hogar y aprovechar cada metro al máximo, adaptando los espacios de forma personalizada y coherente con tu estilo de vida, sin importar el tamaño de la vivienda.

No es un proyecto de reforma integral:
👉 Es el primer paso inteligente para tomar decisiones con seguridad, ahorrar costes y conseguir una casa que funcione de verdad; perfecto para actuar de forma consciente.

Este servicio es para ti

si estás en una de estas situaciones

👉 Acabas de adquirir una casa y necesitas definir la distribución antes de avanzar con obra o mobiliario.

👉 Hiciste reforma hace años y ahora sientes que tomaste decisiones equivocadas.

👉 Tienes una vivienda grande pero obsoleta y deseas cualificar los espacios con un replanteamiento completo adaptado a su forma actual de vivir.

👉 Necesitas más almacenamiento para ganar orden, luz y fluidez sin ampliar metros.

👉 Tienes una vivienda unifamiliar y te gustaría reestructurarla o plantear pequeñas ampliaciones.

👉 Has comprado sobre plano y la promotora permite realizar cambios o ajustes de distribución.

👉 La construcción de tu casa está en marcha y aunque la promotora no permite realizar cambios de distribución, te planteas hacer modificaciones en el futuro: necesitas asesoramiento para evitar malas decisiones en el proceso.

Nuestra metodología

paso a paso

Visita y medición exhaustiva (presencial).
Tomamos todos los datos reales y analizamos in situ cómo funciona tu vivienda.

Entrevista contigo en el espacio.
Para conocer a fondo tus necesidades, objetivos y presupuesto.

Levantamiento y diseño.
Volcamos la información, analizamos flujos, luz, circulaciones y exploramos todas las vías posibles.

Reunión de presentación.
Te explicamos cada propuesta, sus ventajas y cómo mejorará tu día a día.

Ajustes y refinado.
Revisamos y ajustamos hasta llegar a la distribución perfecta para ti.

 

Beneficios reales y cuantificables para ti y tu vivienda

Ganas amplitud sin necesidad de incorporar más metros.

Tomas decisiones de reforma con seguridad.

Evitas errores que salen caros más adelante.

Consigues una casa alineada con tu manera de vivir (no al revés).

Obtienes almacenamiento y orden, luz, fluidez y sensación de casa pensada.

Aumenta el valor percibido de tu vivienda y con él su rentabilidad de cara a una futura posible venta.

«Muchísimas gracias por vuestro trabajo durante todo este tiempo. Como ya hemos comentado en otras ocasiones, captasteis lo que queríamos, y lo hicisteis realidad.»

(Teresa, clienta en 2025).

Confía en nuestra experiencia

y contrasta resultados

Con nosotras averiguarás las posibilidades reales y el coste aproximado de transformar tu casa en lo que realmente necesitas.

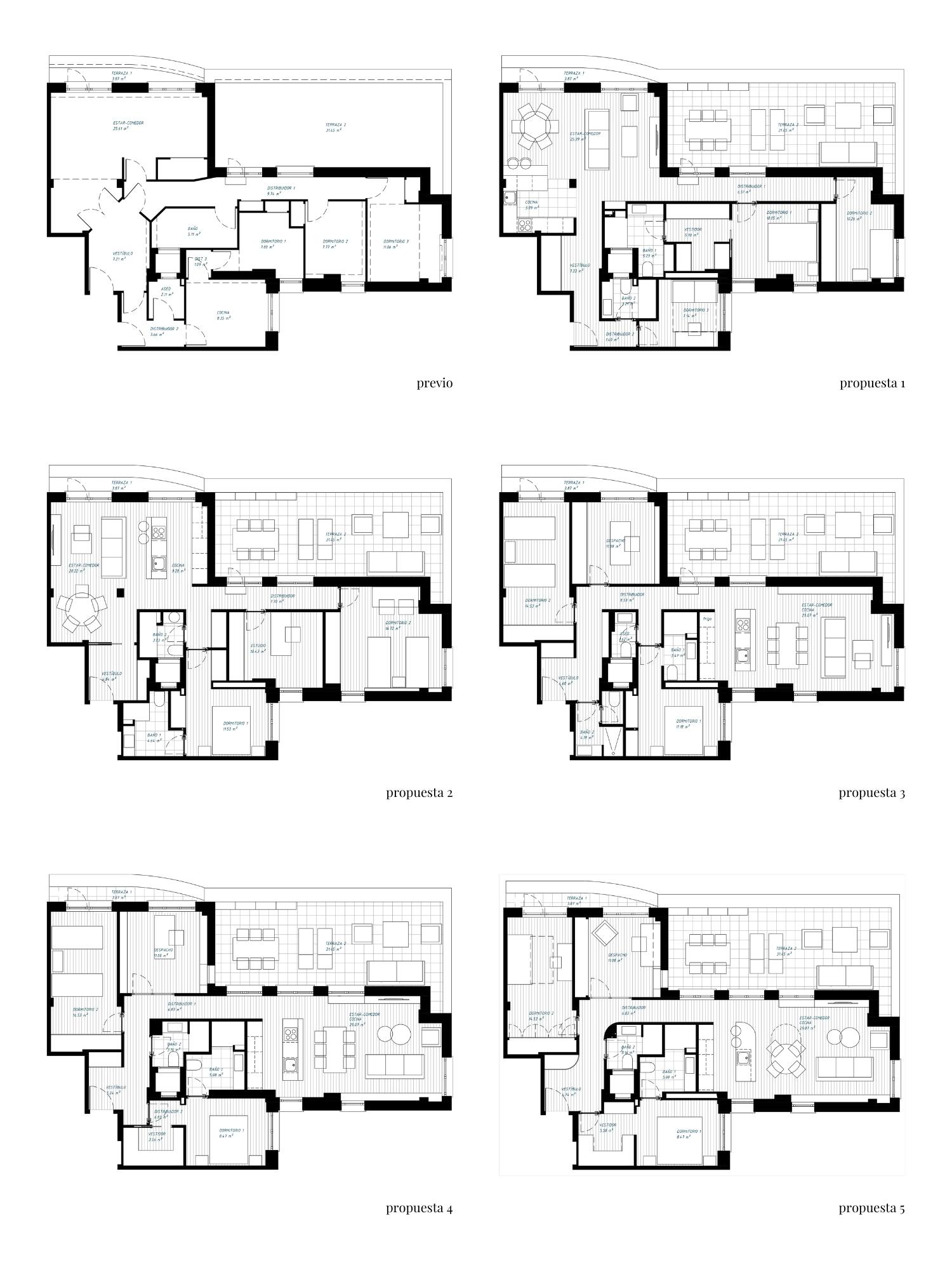
En nuestro instagram @rderoom.es tienes las planos del «antes y después» de más de 20 casos reales. Esto es lo que hay detrás de cada uno:

  • +16 años de experiencia como arquitectas.
  • +150 viviendas redistribuidas.
  • Un equipo creativo y técnico especializado en funcionalidad, interiorismo y reforma integral.
  • Trato transparente, cercano y profesional; directo con nosotras.

 

R-DE-ROOM-arquitectura-interiorismo-proyecto-reforma-CUZCO-I_57_WEB

En formato presencial y online para adaptamos a ti

👉Si estás en Madrid, visitaremos la vivienda para medirla y evaluarla personalmente. Después, podemos hacer reuniones presenciales, en nuestra oficina, u online, si te resulta más cómodo.

👉Si estás fuera de Madrid o la obra está en construcción y dispones de un plano delineado, envíanoslo para evaluarlo. Si cuenta con el nivel de detalle necesario, podemos trabajar contigo de forma totalmente online.

«Es que no podemos añadir más que buenas palabras, gratitud y que hacéis un trabajo fenomenal. Ya sabíamos que íbamos ”a la segura” al escogeros a vosotras, pero el resultado es impactante y 100% satisfactorio. In love con nuestro hogar».

(Marisol, clienta en 2023).

¿Aún tienes dudas? revisa nuestras preguntas más frecuentes

Si estás pensando en contratar este servicio y tienes dudas, te animamos a ponerte en contacto con nosotras. Mientras, te compartimos algunas de las dudas más frecuentes.

¿Cuánto cuesta?

Es un servicio premium pero accesible en el que obtienes mucho más de lo que inviertes.

El presupuesto es personalizado para cada vivienda. Depende generalmente de la superficie. Antes de arrancar, contactamos contigo y te hacemos unas preguntas para ajustarnos a lo que necesitas.

¿Incluye el proyecto de obra?

Incluye las distribuciones y el diseño previo. El proyecto técnico para obra se puede contratar aparte. Si quieres llegar hasta el final, puedes hacerlo con nuestro servicio 360º.

¿Cuánto tardáis?

Depende de los metros y de la complejidad de la vivienda. Tras la visita te facilitamos un calendario claro y realista.

La media es 1 semana desde que medimos.

¿Qué voy a obtener?

A corto plazo:

  • Un plano del estado actual.
  • Varias propuestas de redistribución, estudiadas desde lo técnico y lo estético que incluyen representación de mobiliario real con ajustes hasta quedar plenamente satisfecho.
  • La evaluación funcional de cada alternativa para que tengas la seguridad de estar tomando las mejores decisiones.
  • Recomendaciones de inversión y alcance de obra (orientativas).

Y a medio plazo:

  • Una mejora significativa de tu calidad de vida.
  • Una revalorización real de tu activo inmobiliario.

Contacta con nosotras Cuéntanos tu caso y adaptaremos nuestro acompañamiento a tus necesidades específicas.